Maison individuelle rénovée avec jardin exposé plein sud à Schouweiler
Et si votre nouveau chez-vous se trouvait ici, à Schouweiler ? À seulement 14 km de Luxembourg-Ville, cette maison individuelle pleine de lumière vous invite à profiter d'un cadre de vie paisible, entre nature, confort et modernité.
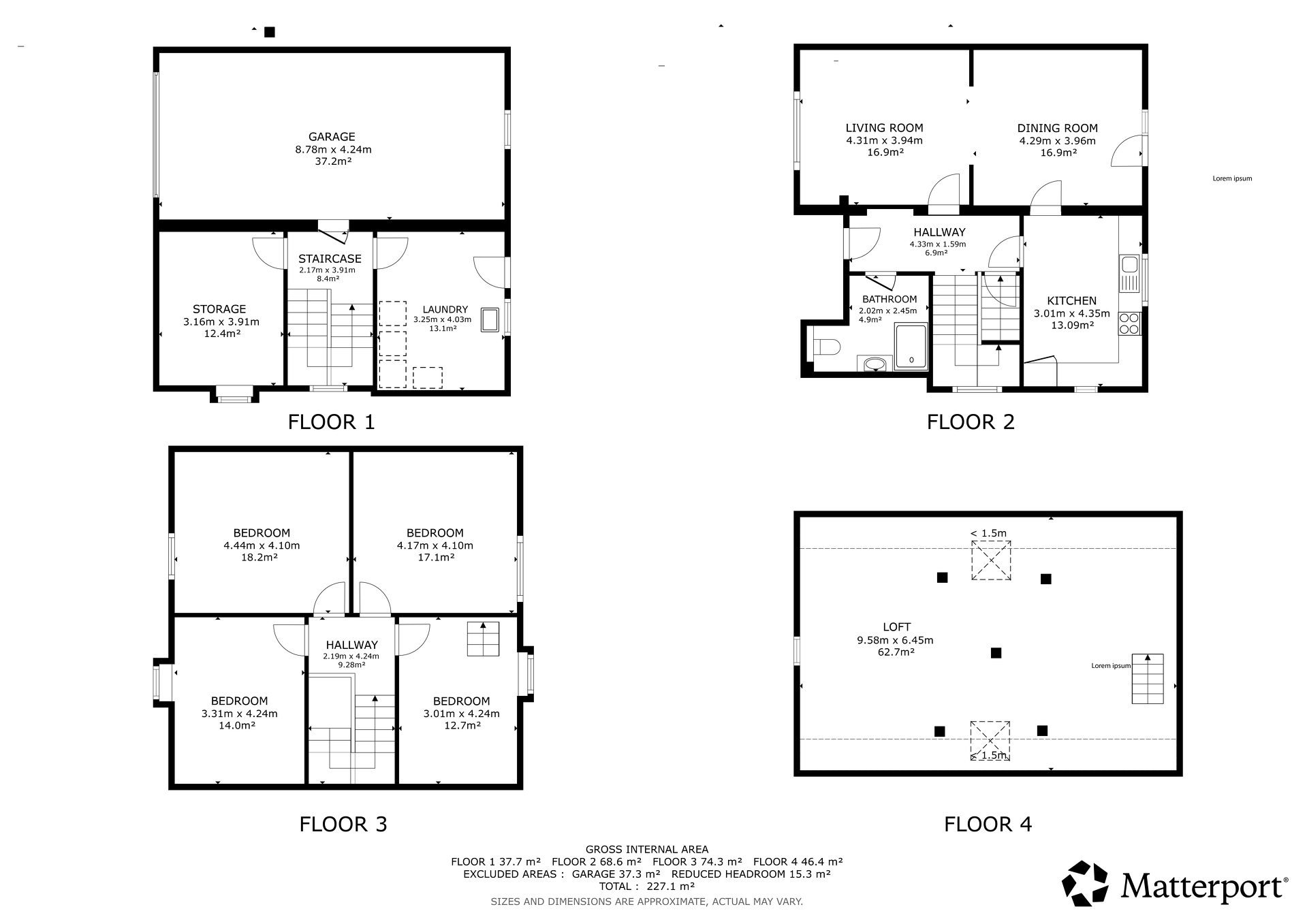
Découvrez la sérénité de cette maison de 140 m² habitables (238 m² au total), implantée sur un terrain de 838 m² au cœur de Schouweiler.
Construite en 1959 et entièrement rénovée en 2016, elle allie le charme à la modernité et à la luminosité d'une maison pensée pour la vie de famille.
Description du bien: Surface habitable : 140 m² (238 m² au total) Terrain : 838 m², dont environ 500 m² de jardin orienté plein sud 4 chambres spacieuses et baignées de lumière Salles d'eau : une salle de douche moderne au rez-de-chaussée Cuisine séparée et complètement équipée, attenante au séjour d'environ 34 m² avec accès direct sur la terrasse et le jardin. Grenier aménageable (digital staging proposé en image) : un escalier dans l'une des chambres vous donne un facile accès à ce grand espace.
Espaces extérieurs et confort: Le jardin, orienté plein sud, est un véritable havre de paix : la propriété est bordée d'une haie naturelle composée de plus de 200 arbustes, garantissant une totale discrétion. Un garage double permet de stationner deux voitures et 2 places de parking extérieures sont également disponibles (avec possibilité d'en créer une troisième).
Emplacement idéal Située dans un quartier résidentiel calme, la maison se trouve à proximité immédiate de : 800 m de la gare de Schouweiler (seulement 16 minutes de train jusqu'à Luxembourg-Gare) 8 minutes à pied de l'école primaire et préscolaire Restaurants, aire de jeux et hall sportif à quelques pas de la maison 6 km du Cactus de Bascharage Un emplacement parfait pour profiter du calme de la campagne tout en restant proche de la ville.
En résumé: Une maison individuelle, lumineuse et entièrement rénovée, avec un grand jardin plein sud et une situation idéale, parfaite pour une famille à la recherche d'espace, de confort et de qualité de vie.
Contact direct : Giulia PITTALUGA, +352 621 465 003