Chambre 1 Chambre,

+/- 18.00
1 200 €/ Mois
Luxembourg-Belair

N° réf 2238003
Description du bien
RE/MAX Forum et Harald-Sven SONTAG (621 300 716), spécialistes de l'immobilier dans les quartiers de Belair et Merl à Luxembourg-ville, sont heureux de vous proposer 3 chambres à louer en COLOCATION dans ce très beau duplex, ENTIÈREMENT RENOVÉ à neuf, il y a 2-3 ans, et extrêmement bien situé, rue des Aubépines dans le quartier de Belair.

IDÉAL POUR JEUNES CADRES DYNAMIQUES ET STAGIAIRES ! ! !

- Chambre n°1 - 18m2 (premier niveau) - DISPONIBLE
- Chambre n°2 - 16m2 (premier niveau) - Loué
- Chambre n°3 - 10m2 (mansardée au second niveau 31m2 au sol) avec salle de bain personnelle - Loué

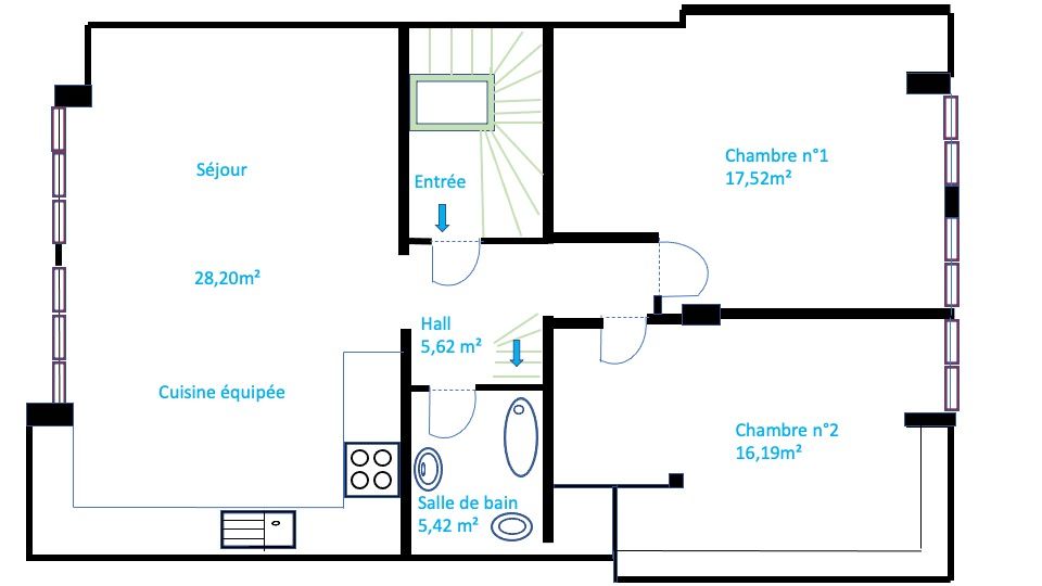
Au 3e et dernier étage d'une petite résidence, cet appartement en Duplex de 110m2 de surface utile et 90m2 habitables, entièrement rénové en 2021 avec beaucoup de goût est composé comme suit :

Au 1e niveau :
- une entrée principale et un couloir desservant toutes les pièces et l'étage
- un grand espace de vie (+/-29m2) lumineux avec cuisine équipée moderne et fonctionnelle donnant sur une vue dégagée sur la nature, orientation Ouest
- une première chambre à coucher (+/-18m2),
- une deuxième chambre à coucher (+/-16m2),
- une salle de bain complète (+/- 6m2) avec baignoire et WC.

Au 2e niveau :
- un escalier design mène à ce second niveau
- une troisième chambre (+/-31m2, au sol) avec beaucoup d'espace de rangement faits sur mesure,
- une salle de douche avec lavabo et WC.

Veuillez noter que l'appartement est situé dans une petite résidence de seulement 3 appartements.

L'absence d'ascenseur, de cave et de garage est compensée par un appartement moderne, très lumineux, où l'on se voit bien cocooner, aussi bien en hiver, que durant les beaux jours.

Un locataire par chambre.

Chaque chambre est aménagée de façon à permettre à chaque colocataire d'avoir son intimité.

Loyer mensuel : 1.200 EUR par chambre
Charges mensuelles : 80 EUR par chambre
Caution : 2.400 EUR par chambre

Disponibilité : 01/03/2026

L'appartement se trouve 4 rue des Aubépines, à Luxembourg-Belair.

Animaux non autorisés.

Les honoraires d'agence s'élèvent à 125% d'un mois de loyer + TVA (17%) et sont répartis à parts égales entre le locataire et le propriétaire.
Caractéristiques du bien
Intérieur
  • Surface : 18.00 m²
  • Nb de chambres : 1
  • Salle(s) de bain : 1
  • Buanderie
  • Cave à vin
  • An construction : 1980
  • Disponibilité : à convenir
  • Nombre d'étages : 3
  • Étage : 3
  • Animaux acceptés
Énergie
  • Chauffage au gaz
  • Double vitrage
Confort
  • Volets roulants
Ce bien vous intéresse ?








* Tous les champs sont obligatoires
Partager : fb in ig

Votre contact pour ce bien


SONTAG Harald-Sven
621 300 716

Situer le bien